`

Xicen Science and Technology Innovation Center New Construction Project - Integral Abutment Bridge (SJT)​

Author:

Source:

Release time:October 30, 2025

Click count:


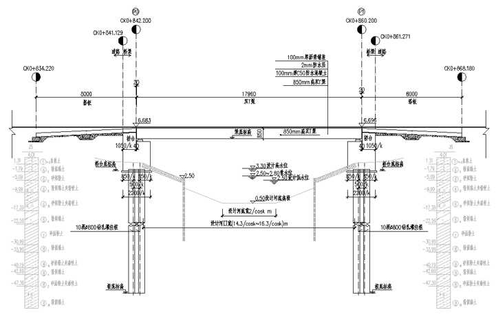
The Peiyang Road-Fenjiawei Port Bridge in the Xicen Science and Innovation Center Project is a three-span continuous bridge crossing the Fenjiawei Port, with a span arrangement of 10+16+10 meters, designed to accommodate a river mouth width of 21 to 22 meters. The bridge adopts a separated dual-deck layout with a total width of 28 meters. The cross-section is designed to accommodate pedestrian walkways, non-motorized vehicle lanes, side medians, motor vehicle lanes, and a central median. The superstructure consists of 11 double T-beams, with beam heights of 0.55 meters for the 10-meter spans and 0.85 meters for the 16-meter spans. The beams are connected by cast-in-place wet joints with looped reinforcement bars. The substructure employs a pile-column system, with reinforced concrete bent piers supported by bored piles with a diameter of 1000 mm. The abutments are designed in a semi-integral style, where the approach slab reinforcement is connected on-site with the main girders. The backfill behind the abutments uses graded crushed stone and medium-coarse sand, with a cushion beam and a plain concrete cushion layer installed beneath the approach slab. Calculation results indicate that under both frequent and standard load combinations, the stresses in the main girders and the bearing capacity of the pile foundations meet the code requirements, ensuring the structure's safety and reliability.

13AEC

DF8F


上一条:K57+125 Pedestrian Bridge on the Dehua Section of the Zhenghe-Yangyuan to Yongding Expressway 下一条:Tiantian Expressway Wuwei to Anqing Section Geosynthetic Reinforced Soil-Integrated Bridge System (GRS-IBS)​

关闭

TOP